
Dieses Objekt ist zur Zeit leider nicht verfügbar.
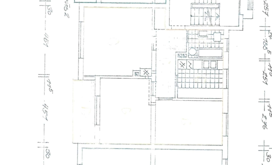
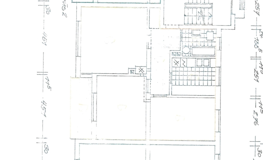
Diese gepflegte 3‑Zimmer‑Wohnung befindet sich in einem 10‑Parteien‑Haus in zentraler Lage von Traunreut und überzeugt durch ihre angenehme Raumaufteilung, gute Infrastruktur sowie eine regelmäßige Instandhaltung. Zusammen mit zwei weiteren, baugleichen Mehrparteienhäusern bildet das Gebäude eine überschaubare und gepflegte Wohnanlage.
Mit rund 67 m² Wohnfläche eignet sich die Wohnung ideal für Paare, kleine Familien oder Kapitalanleger.
Durch die Umstellung auf Fernwärme im Jahr 2024 profitieren zukünftige Eigentümer oder Mieter von einer modernen und nachhaltigen Heizlösung.
Rücklagen zum 31.12.2024: Gesamt 168.533,69 €; Anteil Wohnung: 5.459,31 €
Raumaufteilung:
Highlights der Wohnung
✅ 2024 auf moderne Fernwärme umgestellt – effizient, wartungsarm & zukunftssicher
✅ Wohnfläche ca. 67 m² – optimal geschnitten
✅ Balkon – ideal für entspannte Stunden im Freien
✅ Garage – komfortables Parken direkt am Haus
✅ Kellerabteil – praktischer zusätzlicher Stauraum
✅ Fenster aus 1998 mit Rollo, Türen 2001
✅ Hinweis: Der Energieausweis wurde vor der Umstellung auf Fernwärme erstellt und bildet diese Neuerung noch nicht ab.
Hinweis:
Dieses Exposé ist eine Vorinformation, als Rechtsgrundlage gilt allein der notariell abgeschlossene Kaufvertrag. Alle Angaben sind ohne Gewähr und basieren ausschließlich auf Informationen, die uns von unserem Auftraggeber übermittelt wurden. Wir übernehmen keine Haftung für die Vollständigkeit, Richtigkeit und Aktualität dieser Angaben. Die Grunderwerbsteuer von 3,5 %, Notar- und Grundbuchkosten von ca. 2 % sind vom Käufer zu tragen. Irrtum und Zwischenverkauf/-Vermietung vorbehalten.
Für weitere und ausführliche Informationen oder einen Besichtigungstermin stehen wir Ihnen jederzeit sehr gerne zur Verfügung. Besichtigungen sind nur nach Abstimmung und in unserer Begleitung möglich.
Bei Interesse senden Sie uns ein vollständig ausgefülltes Kontaktformular zu. Anschließend vereinbaren wir eine Besichtigung und Sie erhalten ein ausführliches Exposé zur Immobilie.
Haben Sie bitte Verständnis, das wir nur komplett ausgefüllte Anfragen beantworten können.
Die dargestellte Position der Immobilie ist nur eine ungefähre Angabe.